|
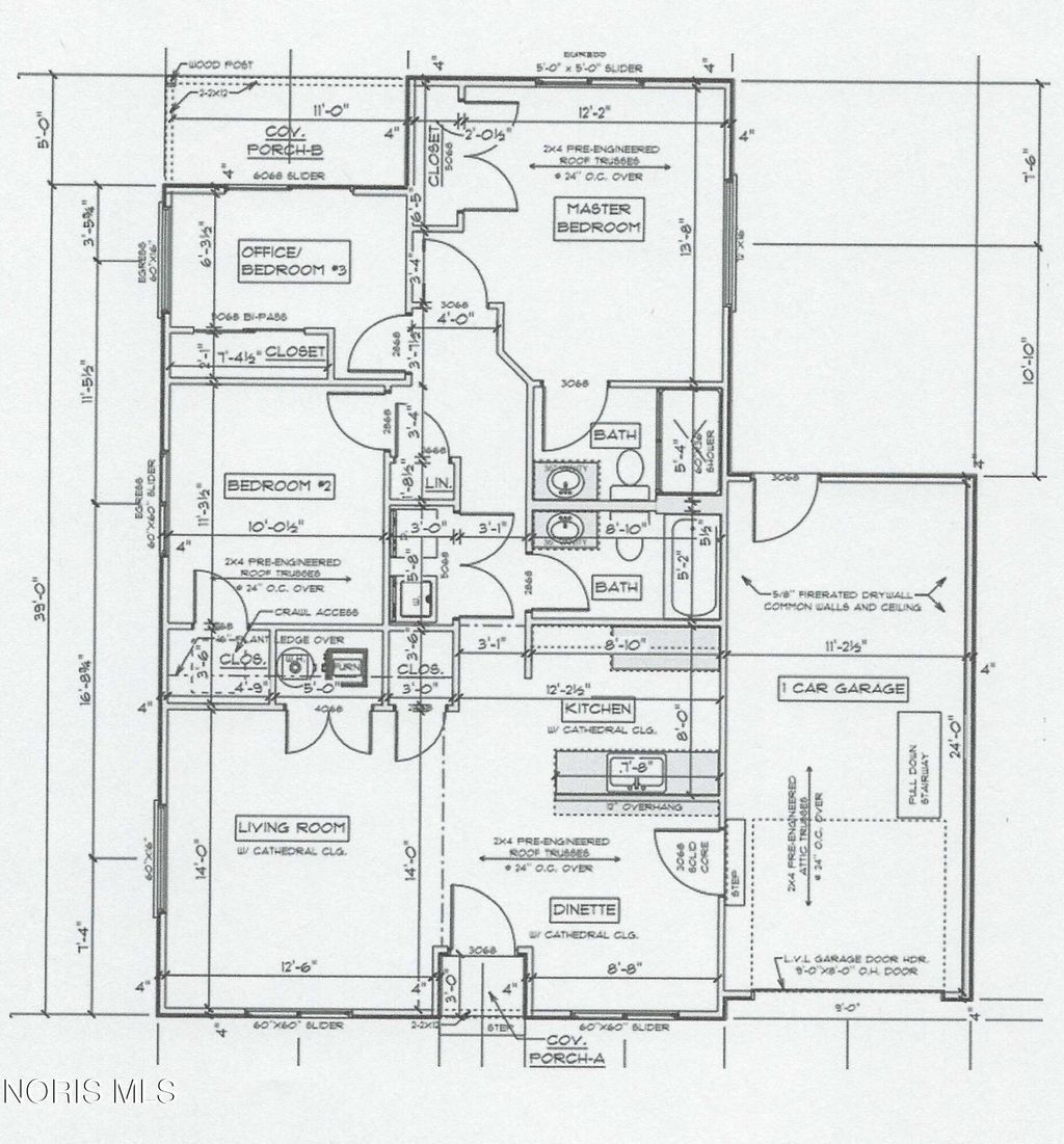
New construction by Woodland Custom Home Builders! This updated twist of the Oakridge is 1103 sq ft open floor ranch on a crawl, 3 bed, 2 bath, 1 car garage! This home will feature granite countertops in the kitchen, tile backsplash, white cabinets and ss appliances! Cathedral ceilings in the living/kitchen/dinning area! Primary bedroom has attached bath with a large walk in shower! 3rd bed/office in back will have a slider with access to a covered porch. Large slider windows throughout the house along with transoms for tons of natural light. 12'x17' cement patio out back through the man door in garage. Sump pump in conditioned crawl. Taxes are on land only.
Property Type(s):
Single Family
| Last Updated | 3/31/2026 | Tract | None |
|---|---|---|---|
| Year Built | 0 | Garage Spaces | 1.0 |
| County | Henry |
SCHOOLS
| Elementary School | Napoleon |
|---|---|
| Jr. High School | None |
| High School | Napoleon |
Additional Details
| AIR | Central Air |
|---|---|
| AIR CONDITIONING | Yes |
| APPLIANCES | Dishwasher, Disposal, Gas Range, Humidifier, Microwave |
| BASEMENT | Crawl Space, Sump Pump |
| CONSTRUCTION | Vinyl Siding |
| EXTERIOR | Private Yard |
| GARAGE | Yes |
| HEAT | Forced Air, Natural Gas |
| INTERIOR | Cathedral Ceiling(s), Ceiling Fan(s), Open Floorplan |
| LOT | 8712 sq ft |
| LOT DESCRIPTION | Other |
| LOT DIMENSIONS | 66x132 |
| PARKING | Asphalt, Driveway, Attached, Garage |
| SEWER | Public Sewer |
| STORIES | 1 |
| STYLE | Traditional |
| SUBDIVISION | None |
| UTILITIES | Electricity Connected, Natural Gas Connected, Sewer Connected, Water Connected |
| WATER | Public |
Location
Contact us about this Property
| / | |
| We respect your online privacy and will never spam you. By submitting this form with your telephone number you are consenting for Michael Murry to contact you even if your name is on a Federal or State "Do not call List". | |
Listed with Martin Signature Properties
The data relating to real estate for sale on this website comes in part from the Broker Reciprocity Program of the NORIS MLS. Real estate listings held by brokerage firms other than Whalen Realty & Auction, Ltd are marked with the Broker Reciprocity logo or the Broker Reciprocity thumbnail logo (a little black house) and detailed information about them includes the name of the listing brokers.
Listing information is deemed reliable, but not guaranteed.
Copyright 2026 NORIS. All rights reserved.
Data last updated: 3/31/26 3:10 PM PDT
This IDX solution is (c) Diverse Solutions 2026.