|
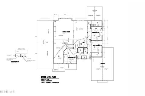
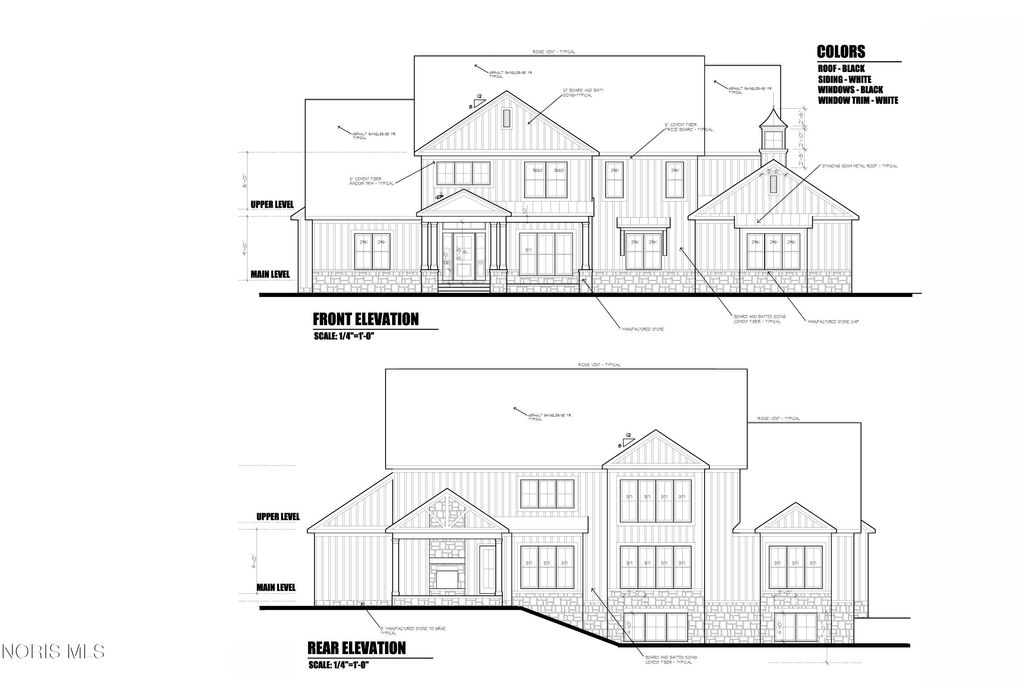
An extraordinary opportunity awaits on the shores of Lake Erie in the charming lakeside community of Vermilion. Three exclusive lakefront homesites are now available"”each offering breathtaking water views, stunning sunsets, and the rare chance to create a custom luxury residence tailored to your lifestyle. These exceptional homesites offer expansive lot sizes, providing ample space for custom design, outdoor living areas, and panoramic views of Lake Erie. Each property features access to a private beach with rare zero-entry access"”perfect for effortless lakeside enjoyment, swimming, paddleboarding, or simply relaxing along the shoreline. The generous frontage and gradual water access create a truly distinctive and highly desirable waterfront setting. This is a unique build-to-suit opportunity offered exclusively in partnership with Perrino Builders & Remodeling, a family-owned company proudly serving the Cleveland area for over 40 years. Renowned for exceptional craftsmanship and luxury custom homebuilding, Perrino works hand-in-hand with each client from concept to completion"”ensuring a seamless, personalized experience at every stage. Buyers will enjoy access to Perrino's impressive 23,000-square-foot Design Center"”an all-in-one, immersive showroom experience. This exclusive space allows you to see, touch, and compare a wide array of premium features, materials, and finishes. Whether refining an existing plan or designing a custom home from the ground up, Perrino's expert team provides professional design guidance to bring your interior vision to life while aligning every detail with your budget. From custom plan development to permitting, inspections, and final construction, Perrino manages the entire building process"”delivering peace of mind along with superior quality. Don't miss this rare chance to secure one of three premier Lake Erie front properties in Vermilion and build the waterfront home you've always envisioned. Luxury lakefront living starts here.
Property Type(s):
Single Family
| Last Updated | 2/25/2026 | Tract | None |
|---|---|---|---|
| Year Built | 0 | Garage Spaces | 2.0 |
| County | Erie |
SCHOOLS
| Elementary School | Vermilion |
|---|---|
| Jr. High School | Sailorway |
| High School | Vermilion |
Additional Details
| AIR | Central Air |
|---|---|
| AIR CONDITIONING | Yes |
| BASEMENT | Full, Yes |
| CONSTRUCTION | Other |
| FIREPLACE | Yes |
| GARAGE | Yes |
| HEAT | Forced Air |
| INTERIOR | Other |
| LOT | 1.4577 acre(s) |
| LOT DIMENSIONS | 124 x 630 |
| PARKING | Other |
| SEWER | Public Sewer |
| STORIES | 2 |
| STYLE | Other |
| SUBDIVISION | None |
| UTILITIES | Other |
| WATER | Public |
| WATERFRONT | Yes |
| WATERFRONT DESCRIPTION | Lake |
Location
Contact us about this Property
| / | |
| We respect your online privacy and will never spam you. By submitting this form with your telephone number you are consenting for Michael Murry to contact you even if your name is on a Federal or State "Do not call List". | |
Listed with Howard Hanna
The data relating to real estate for sale on this website comes in part from the Broker Reciprocity Program of the NORIS MLS. Real estate listings held by brokerage firms other than Whalen Realty & Auction, Ltd are marked with the Broker Reciprocity logo or the Broker Reciprocity thumbnail logo (a little black house) and detailed information about them includes the name of the listing brokers.
Listing information is deemed reliable, but not guaranteed.
Copyright 2026 NORIS. All rights reserved.
Data last updated: 2/26/26 10:36 AM PST
This IDX solution is (c) Diverse Solutions 2026.