|
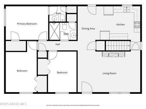
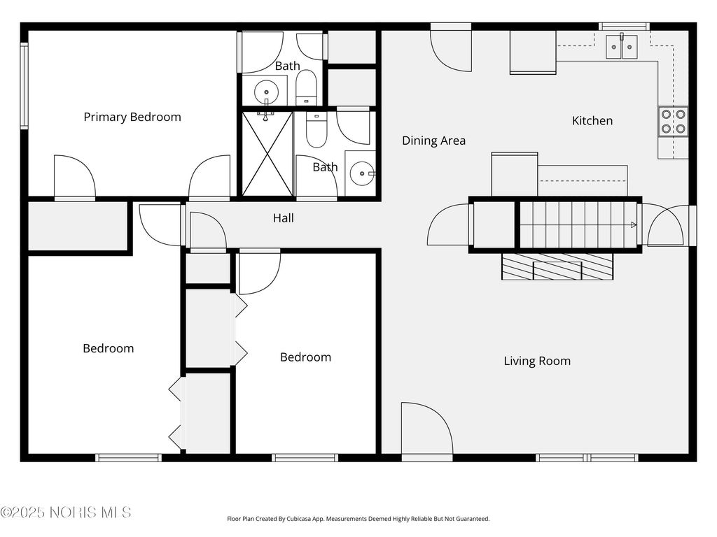
Welcome to this 3-bedroom ranch that offers comfortable living with smart updates throughout. The main level features a traditional layout with three bedrooms and full bathroom. The primary bedroom includes its own private half bath"”an added bonus for everyday comfort. Downstairs, the open-concept basement provides a versatile extension of your living space. With plenty of room to create a bedroom, home office, recreation area, or workout space, it's a level that can grow and adapt with your needs. Recent improvements include a new furnace in 2024 and updated flooring in 2025, giving you peace of mind and a fresh, modern feel.
Property Type(s):
Single Family
| Last Updated | 12/4/2025 | Tract | None |
|---|---|---|---|
| Year Built | 1978 | Garage Spaces | 2.0 |
| County | Seneca |
SCHOOLS
| Elementary School | Fostoria |
|---|---|
| Jr. High School | Fostoria |
| High School | Fostoria |
Additional Details
| AIR | None |
|---|---|
| APPLIANCES | Dryer, Electric Oven, Electric Range, Refrigerator, Washer |
| BASEMENT | Block, Yes |
| CONSTRUCTION | Vinyl Siding |
| FIREPLACE | Yes |
| GARAGE | Yes |
| HEAT | Natural Gas |
| INTERIOR | Ceiling Fan(s) |
| LOT | 0.77 acre(s) |
| LOT DIMENSIONS | 220x153 |
| PARKING | Driveway, Attached, Garage |
| SEWER | Septic Tank |
| STORIES | 1 |
| SUBDIVISION | None |
| UTILITIES | Electricity Connected, Natural Gas Connected |
| WATER | Well |
Location
Contact us about this Property
| / | |
| We respect your online privacy and will never spam you. By submitting this form with your telephone number you are consenting for Michael Murry to contact you even if your name is on a Federal or State "Do not call List". | |
Listed with The Danberry Co
The data relating to real estate for sale on this website comes in part from the Broker Reciprocity Program of the NORIS MLS. Real estate listings held by brokerage firms other than Whalen Realty & Auction, Ltd are marked with the Broker Reciprocity logo or the Broker Reciprocity thumbnail logo (a little black house) and detailed information about them includes the name of the listing brokers.
Listing information is deemed reliable, but not guaranteed.
Copyright 2025 NORIS. All rights reserved.
Data last updated: 12/19/25 6:50 AM PST
This IDX solution is (c) Diverse Solutions 2025.